Wohlen, Erschliessungsplan «Wil-Huebächer»
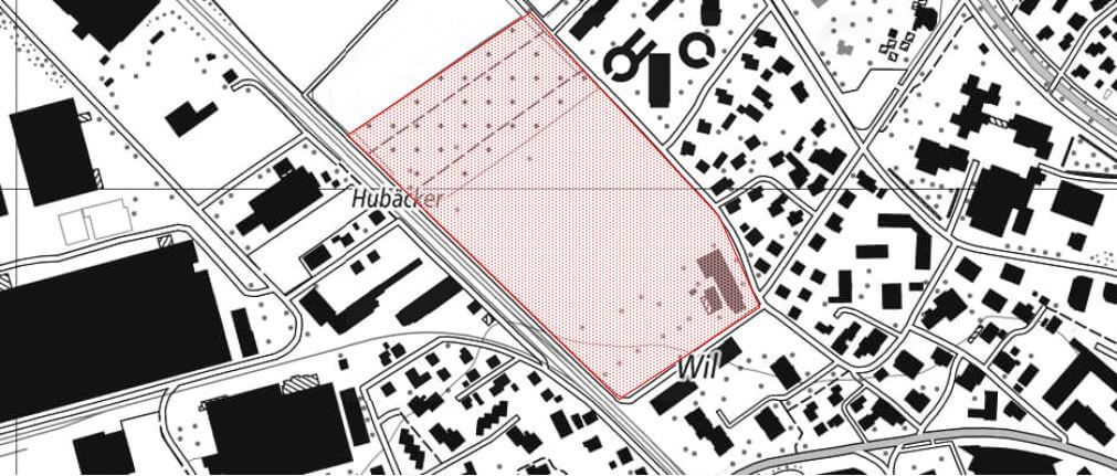
Das Gebiet Wil/Huebächer liegt in direkter Nachbarschaft zum wirtschaftlichen Entwicklungsschwerpunkt ESP Wohlen/Villmergen. Der Erschliessungsplan Wil/Huebächer dient einer koordinierten Erschliessung der zu mobilisierenden Gewerbeflächen.
- LEISTUNGEN
- Raumentwicklung
- AUFTRAGGEBER
- Gemeinde Wohlen
- PROJEKTZEITRAUM
- 2019–2025
- PROJEKTTEAM
-
Adrian Duss, Projektleitung
Daniel Luchsinger, Stv. Projektleitung - REFERENZPERSONEN
- Claudia Schwarzmaier / Raum– und Verkehrsplanerin Ortsentwicklung Gemeinde Wohlen
Die Baulandreserven im Gebiet Wil/Huebächer sollen für die gewerbliche Nutzung mobilisiert werden. Die Absichten der verschiedenen Grundeigentümer gilt es dabei zu koordinieren. Durch eine zentrale Parkierungsanlage für das Areal und die koordinierte Anlage von Grünräumen können Synergien genutzt und dadurch eine optimale Baulandausnutzung in qualitativer und quantitativer Hinsicht erreicht werden. Durch die bewusste Setzung der Erschliessungsanlagen werden flexible und nachfragegerechte Flächen für strategische Grossansiedlungen einerseits und die Gewährleistung von kleinerem Gewerbe ermöglicht. Parallel zur Erschliessungsplanung wurde ein öffentlich-rechtliches Landumlegungsverfahren durchgeführt.
Verfahrenskoordination (Entwurf bis Genehmigung), Ausarbeitung baurechtlicher und weiterer fachtechnischer Festlegungen über Sondernutzungsvorschriften und Situationsplan
KIP Siedlungsplan AG
17‘450 (2023)
Wirtschaftlicher Entwicklungsscherpunkt ESP Wohlen/Villmergen
ca. 6 Hektaren
- Koordination mit Landumlegungsverfahren
- Zentrale Parkierungsanlage zur Gewährleistung einer optimalen Bauland- und Synergienutzung
- Zentrale Fläche für Gewerbeentwicklung in Wohlen
- Abstimmung mit übergeordneten Interessen (u.a. SBB-Linie, Agglomerationsprogramm)
Team
Adrian Duss
Adrian Duss
Mitinhaber und Mitglied der Geschäftsleitung
MSc. UZH in Geographie
MAS Raumplanung ETHZ
Daniel Luchsinger
Daniel Luchsinger
Bereichsleiter
MSc. in Geographie UZH
CAS OST in nachhaltige Mobilität