Gesamtrevision Nutzungsplanung Siedlung und Kulturland in Teufenthal
In der Wynentaler Gemeinde Teufenthal wird die Nutzungsplanung Siedlung und Kulturland revidiert.
- AUFTRAGGEBER
-
Einwohnergemeinde Teufenthal
Kirchweg 1
5723 Teufenthal - PROJEKTZEITRAUM
- Seit 2018
- PROJEKTTEAM
-
Reto Ribolla, Projektleitung
Yannick Marti, Projektleitung Stv. und Sachbearbeitung - REFERENZPERSONEN
-
Niklaus Boss, Gemeindeammann
Reto Müller, Bauverwalter
Aufgrund des abgelaufenen Planungshorizonts, der Umsetzung des teilrevidierten eidgenössischen Raumplanungsgesetzes und des überarbeiteten Richtplans des Kantons Aargau hat die Gemeinde Teufenthal 2018 eine Gesamtrevision der Nutzungsplanung in Angriff genommen. In Zusammenarbeit mit einer breit aufgestellten Planungskommission wurden ein Räumliches Entwicklungsleitbild sowie die Revisionsinhalte erarbeitet.
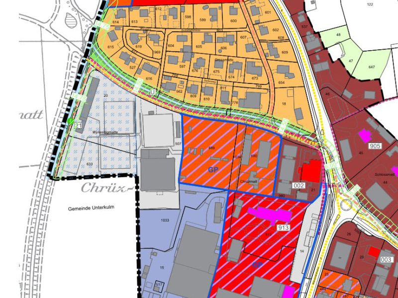
Besonders hervorzuheben ist die Transformation des Injecta-Areals, in welchem nebst den bisherigen industriellen und gewerblichen Nutzungen neu auch Wohnnutzungen vorgesehen sind. Als Basis für die geplanten Nutzungen wurde ein Studienauftragsprojekt entwickelt. Eine grosse Herausforderung stellt der Umgang mit den überdimensionierten Bauzonenreserven und die damit verknüpfte Prüfung von Auszonungen dar. Weitere wichtige Inhalte im Rahmen der Gesamtrevision sind die Umsetzung der Gewässerräume und der schutzwürdigen Natur- und Kulturobjekte.
Nebst dem Bauzonen- und Kulturlandplan wurde die Bau- und Nutzungsordnung grundlegend überarbeitet und an die kantonale Muster-BNO und an die IVHB (interkantonale Vereinbarung über die Harmonisierung der Baubegriffe) angepasst.
Raumentwicklung
- Räumliches Entwicklungsleitbild
- Revision Bau- und Nutzungsordnung
- Revision Bauzonenplan
- Revision Kulturlandplan
- Erarbeitung Hochwasserschutzplan
- Planungsbericht
Ackermann + Wernli AG
Eins zu Eins Architekten AG, Aarau, Stephan Bircher, Fachberater Bereich Ortsbildschutz und Siedlungsentwicklung
Büro Ballmer+Partner AG, Aarau, Überarbeitung kommunalen Verkehrsrichtplan
Ländlicher Entwicklungsraum
357 ha
54 ha
1‘765
- Begleitung Gemeinderat bei der Erstelltung einer Auszonungsstrategie zur Überprüfung und Festlegung von Auszonungen
- Transformation ehemaliges Industriegebiet des Injecta-Areals: Auf der Grundlage eines Studienauftragsprojektes und Überführungskonzeptes werden Mischnutzungen angestrebt.
- Um- und Aufzonung des ehemaligen Werkhofareals zur Stärkung des Gewerbegebietes und für die Ansiedlung von Wohnnutzungen
- Erstellung eines Revitalisierungskonzept für den Dorfbach als Basis für die Ausscheidung des Gewässerraumes zur Sicherung des für die Bachöffnung und -revitalisierung notwendigen Raumes
- Festlegung diverser Gestaltungsplanpflichten zur Qualitätssicherung
- Umsetzung Naturschutz- und Kulturschutzobjekte
Team
Reto Ribolla
Reto Ribolla
Mitglied der Geschäftsleitung, Bereichsleiter
MSc. UZH in Geographie
CAS Raumplanung ETHZ